Дом 8 на 6

от 0 руб. Оставить

Модульный дом 8x6 м — надежный дом для отдыха и проживания

 

Модульный дом 8 на 6 метров — это компактное и комфортное решение для семьи или пары, которым важны изолированная спальня и разделение кухни и гостиной в Новосибирске и области. Дом рассчитан на сибирский климат, выдерживает снеговые и ветровые нагрузки, сохраняет тепло зимой и прохладу летом.

 

Характеристики

● Размеры: 8 x 6 м, оптимальный формат для дачи или круглогодичного проживания.​

● Конструкция: Каркасная с утеплением стен, пола и крыши для использования круглый год.​

● Отделка: Внешняя и внутренняя по вашему выбору — от бюджетных решений до премиальных материалов.​

● Окна: Увеличенные световые проёмы в зоне гостиной для естественного освещения и визуального увеличения пространства.​

● Коммуникации: Разводка электрики, воды и вентиляции с возможностью подключения к сетям на участке.​

 

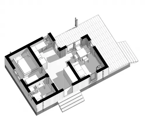
Планировка

● Кухня: Отдельно выделенная зона, скрытая от диванной группы, что снижает распространение запахов и создаёт более аккуратный вид в гостиной.​

● Гостиная: Пространство для отдыха с диванной группой и обеденным столом, который расположен именно в гостиной, а не на кухне.​

● Спальня: Изолированная комната с дверью, обеспечивающая приватность и спокойный сон, даже когда в гостиной кто-то отдыхает или смотрит телевизор.​

● Санузел: Компактный, но функциональный блок с местом под душ, унитаз и раковину.​

● Входная зона: Небольшая прихожая или тамбур для размещения обуви и верхней одежды, чтобы грязь и холод не попадали в жилую часть.​

 

Технические детали

● Каркас: Из древесины с защитной обработкой от влаги, плесени и насекомых, что продлевает срок службы дома.​

● Утепление: Минераловатные плиты с ветрозащитой и пароизоляцией, рассчитанные на эксплуатацию в сибирском климате.​

● Кровля: Металлочерепица или профлист с гидроизоляцией для защиты от осадков и образования наледи.​

● Электрика: Подготовка под освещение, розетки в основных зонах, выводы под бытовую технику на кухне.​

● Готовность к установке: Дом собирается из заводских модулей, монтаж на участке занимает минимум времени по сравнению с классическим строительством.

Что входит в базовую стоимость дома

Минимум стоимости-максимум комфорта и функциональности

Стандартно фасады выполняются: из имитации бруса в комбинированном варианте (имитация бруса + профлист).

Стандартно фасады выполняются: из имитации бруса в комбинированном варианте (имитация бруса + профлист).

Стандартно фасады выполняются: из имитации бруса в комбинированном варианте (имитация бруса + профлист).

Стандартно фасады выполняются: из имитации бруса в комбинированном варианте (имитация бруса + профлист).

Стандартно фасады выполняются: из имитации бруса в комбинированном варианте (имитация бруса + профлист).

Стандартно фасады выполняются: из имитации бруса в комбинированном варианте (имитация бруса + профлист).

Стандартно фасады выполняются: из имитации бруса в комбинированном варианте (имитация бруса + профлист).

Стандартно фасады выполняются: из имитации бруса в комбинированном варианте (имитация бруса + профлист).

Стандартно фасады выполняются: из имитации бруса в комбинированном варианте (имитация бруса + профлист).

Официальный договор

Фиксируем сроки, этапы и стоимость. Всё чётко и прозрачно.

Гарантия на все виды работ

Даём реальные сроки гарантии и быстро реагируем, если что-то пойдёт не так.

Работаем по регламенту

Каждый этап — по плану. Никакой самодеятельности или «как получится».

ОТВЕЧАЕМ ЗА РЕЗУЛЬТАТ

Сами осуществляем доставку и монтаж