Дом 8,5 на 5

от 0 руб. Оставить

Модульный дом 8,5x5 м — компактный дачный дом для семьи

Модульный дом 8,5 на 5 метров — это компактный и продуманный вариант для дачи или круглогодичного проживания в Новосибирске и области, где важны отдельная спальня и уютная кухня-гостиная. Планировка с двумя комнатами и террасой напоминает скандинавские проекты 40–42,5 м², но адаптирована под сибирский климат.

Модульный дом 8,5 на 5 метров — это компактный и продуманный вариант для дачи или круглогодичного проживания в Новосибирске и области, где важны отдельная спальня и уютная кухня-гостиная. Планировка с двумя комнатами и террасой напоминает скандинавские проекты 40–42,5 м², но адаптирована под сибирский климат.

 

Характеристики

● Размеры: 8,5 x 5 м, площадь по основанию около 40+ м², удобный формат для небольших участков.

● Конструкция: Каркасная с утеплением стен, пола и крыши для круглогодичной эксплуатации.

● Отделка: Внешняя и внутренняя под ваш стиль — от минималистичного сканди до более классических решений.

● Окна: Крупные проёмы в зоне кухни-гостиной и выходе на террасу, обеспечивающие много естественного света.

● Коммуникации: Подготовка под электрику, воду, канализацию и вентиляцию с возможностью подключения к сетям на участке.

 

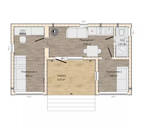
Планировка

● Терраса (8,5 м²): Уютная наружная площадка у входа, на которой можно разместить стол и стулья для отдыха на свежем воздухе.

● Кухня-гостиная (11,96 м²): Объединённое пространство для приготовления пищи, обеденной зоны и отдыха; сюда логично поставить кухонный гарнитур, стол и диван.​

● Спальня (9,83 м²): Изолированная спальня с дверью, подходит для двуспальной кровати и системы хранения.

● Вторая комната (4,83 м²): Компактное помещение под детскую, кабинет или гостевую комнату.

● Санузел (если предусмотрен проектом): Небольшой, но функциональный блок с местом под душ, унитаз и раковину.

 

Технические детали

● Каркас: Деревянный силовой каркас из доски камерной сушки с огнебиозащитой, аналогично решениям в домах «Скандинавия 42.5».​

● Утепление: Минеральная вата с паро- и ветрозащитой, рассчитанная на использование в холодном климате.

● Кровля: Металлический профлист или металлочерепица с гидроизоляцией для защиты от осадков.

● Электрика: Щит с автоматами, скрытая проводка, розетки и освещение во всех основных зонах, усиленная линия на кухню.​

Сборка: Дом поставляется готовыми модулями, монтаж на участке занимает значительно меньше времени, чем классическое строительство.

Что входит в базовую стоимость дома

Минимум стоимости-максимум комфорта и функциональности

Стандартно фасады выполняются: из имитации бруса в комбинированном варианте (имитация бруса + профлист).

Стандартно фасады выполняются: из имитации бруса в комбинированном варианте (имитация бруса + профлист).

Стандартно фасады выполняются: из имитации бруса в комбинированном варианте (имитация бруса + профлист).

Стандартно фасады выполняются: из имитации бруса в комбинированном варианте (имитация бруса + профлист).

Стандартно фасады выполняются: из имитации бруса в комбинированном варианте (имитация бруса + профлист).

Стандартно фасады выполняются: из имитации бруса в комбинированном варианте (имитация бруса + профлист).

Стандартно фасады выполняются: из имитации бруса в комбинированном варианте (имитация бруса + профлист).

Стандартно фасады выполняются: из имитации бруса в комбинированном варианте (имитация бруса + профлист).

Стандартно фасады выполняются: из имитации бруса в комбинированном варианте (имитация бруса + профлист).

Официальный договор

Фиксируем сроки, этапы и стоимость. Всё чётко и прозрачно.

Гарантия на все виды работ

Даём реальные сроки гарантии и быстро реагируем, если что-то пойдёт не так.

Работаем по регламенту

Каждый этап — по плану. Никакой самодеятельности или «как получится».

ОТВЕЧАЕМ ЗА РЕЗУЛЬТАТ

Сами осуществляем доставку и монтаж