Дом 6 на 9

от 0 руб. Оставить

Модульный дом 6x9 м — небольшой дом для семьи

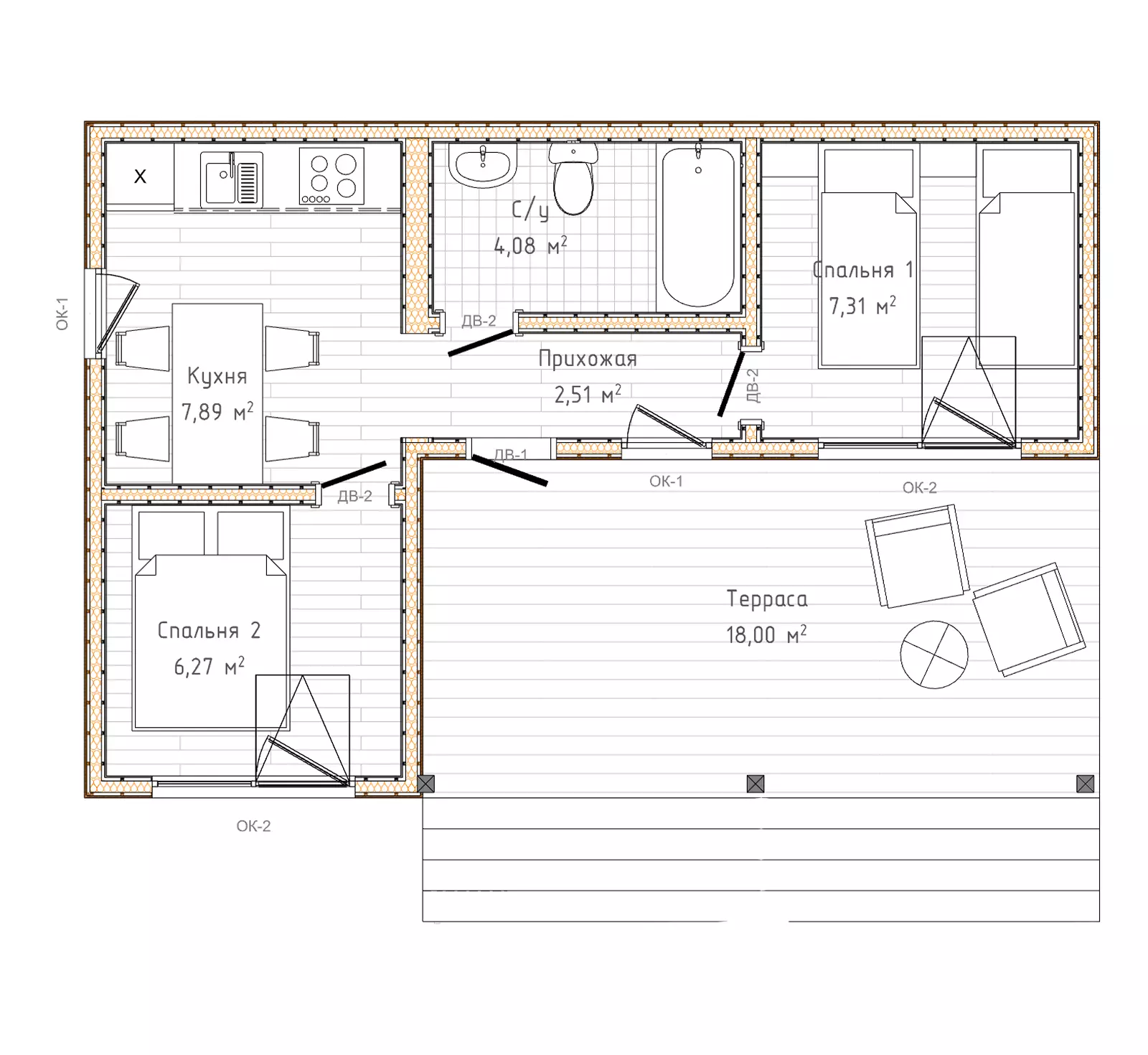
Модульный дом 6 на 9 метров — это функциональное решение для семьи, в котором на площади около 40 м² разместились две изолированные спальни, отдельная кухня и просторная терраса. Такой формат оптимален для дачи и круглогодичного проживания в Новосибирске и области, сочетая компактность застройки с комфортной планировкой.

 

Характеристики

● Размеры: 6 x 9 м, рациональное использование участка с сохранением полезной площади внутри.

● Конструкция: Каркасная с утеплением стен, пола и крыши, рассчитанная на эксплуатацию в сибирском климате.

● Отделка: Внешняя и внутренняя под ваш запрос — от лаконичного скандинавского стиля до более классических решений.

● Окна: Увеличенные световые проёмы в зоне гостиной и выход на террасу для максимального естественного освещения.

● Коммуникации: Подготовка под электрику, водоснабжение, канализацию и вентиляцию, с возможностью подключения к сетям участка.

 

Планировка

● Терраса (18 м²): Просторная открытая площадка у входа, где можно разместить зону отдыха, обеденный стол или шезлонги для летнего отдыха.

● Кухня (7,89 м²): Отдельно выделенная кухня, отделённая от диванной и обеденной зоны, что позволяет готовить, не мешая отдыху в гостиной.

● Спальня 1 (6,27 м²): Изолированная спальня с дверью, подходит для размещения одного-двух спальных мест и компактной системы хранения.​

● Спальня 2 (7,31 м²): Вторая отдельная комната, которую можно использовать как детскую, гостевую или кабинет.

● Гостиная/обеденная зона: Располагается отдельно от кухни, здесь удобно поставить диван, ТВ-зону и обеденный стол для всей семьи.

● Санузел: Компактное, но функциональное помещение с местом для душа, унитаза и раковины, при желании — стиральной машины.

 

Технические детали

● Каркас: Деревянный, с защитной обработкой от влаги, грибка и насекомых, что увеличивает срок службы дома.

● Утепление: Минераловатные плиты с ветрозащитой и пароизоляцией, позволяющие использовать дом круглый год.

● Кровля: Металлочерепица или профлист с гидроизоляцией, обеспечивающие надёжную защиту от осадков.

● Электрика: Разводка под освещение и розетки в основных зонах, усиленная зона на кухне под бытовую технику.

● Сборка: Дом поставляется модульными блоками, что сокращает сроки монтажа на участке по сравнению с классическим строительством.

Что входит в базовую стоимость дома

Минимум стоимости-максимум комфорта и функциональности

Стандартно фасады выполняются: из имитации бруса в комбинированном варианте (имитация бруса + профлист).

Стандартно фасады выполняются: из имитации бруса в комбинированном варианте (имитация бруса + профлист).

Стандартно фасады выполняются: из имитации бруса в комбинированном варианте (имитация бруса + профлист).

Стандартно фасады выполняются: из имитации бруса в комбинированном варианте (имитация бруса + профлист).

Стандартно фасады выполняются: из имитации бруса в комбинированном варианте (имитация бруса + профлист).

Стандартно фасады выполняются: из имитации бруса в комбинированном варианте (имитация бруса + профлист).

Стандартно фасады выполняются: из имитации бруса в комбинированном варианте (имитация бруса + профлист).

Стандартно фасады выполняются: из имитации бруса в комбинированном варианте (имитация бруса + профлист).

Стандартно фасады выполняются: из имитации бруса в комбинированном варианте (имитация бруса + профлист).

Официальный договор

Фиксируем сроки, этапы и стоимость. Всё чётко и прозрачно.

Гарантия на все виды работ

Даём реальные сроки гарантии и быстро реагируем, если что-то пойдёт не так.

Работаем по регламенту

Каждый этап — по плану. Никакой самодеятельности или «как получится».

ОТВЕЧАЕМ ЗА РЕЗУЛЬТАТ

Сами осуществляем доставку и монтаж