Дом 6 на 6

от 0 руб. Оставить

Модульный дом 6x6 м — комфортный дом для отдыха и проживания

Модульный дом 6 на 6 метров — это продуманное решение для семьи или пары, которые хотят больше пространства на участке в Новосибирске и области. Конструкция рассчитана на сибирские условия: дом выдерживает снеговую нагрузку, устойчив к морозам и ветровым нагрузкам, сохраняя комфорт внутри.

В продуманной планировке разместились гостиная, отдельная спальня, санузел и большое крыльцо. Лаконичный современный стиль и функциональная планировка подходят как для дачи, так и для постоянного проживания.

 

Характеристики

● Размеры: 6 x 6 м.

● Конструкция: Каркасная с утеплением стен, пола и крыши.

● Отделка: Внешняя и внутренняя по вашему выбору.

● Окна: Большие световые проёмы для естественного освещения.

● Коммуникации: Разводка электрики, воды, вентиляции для подключения на участке.

 

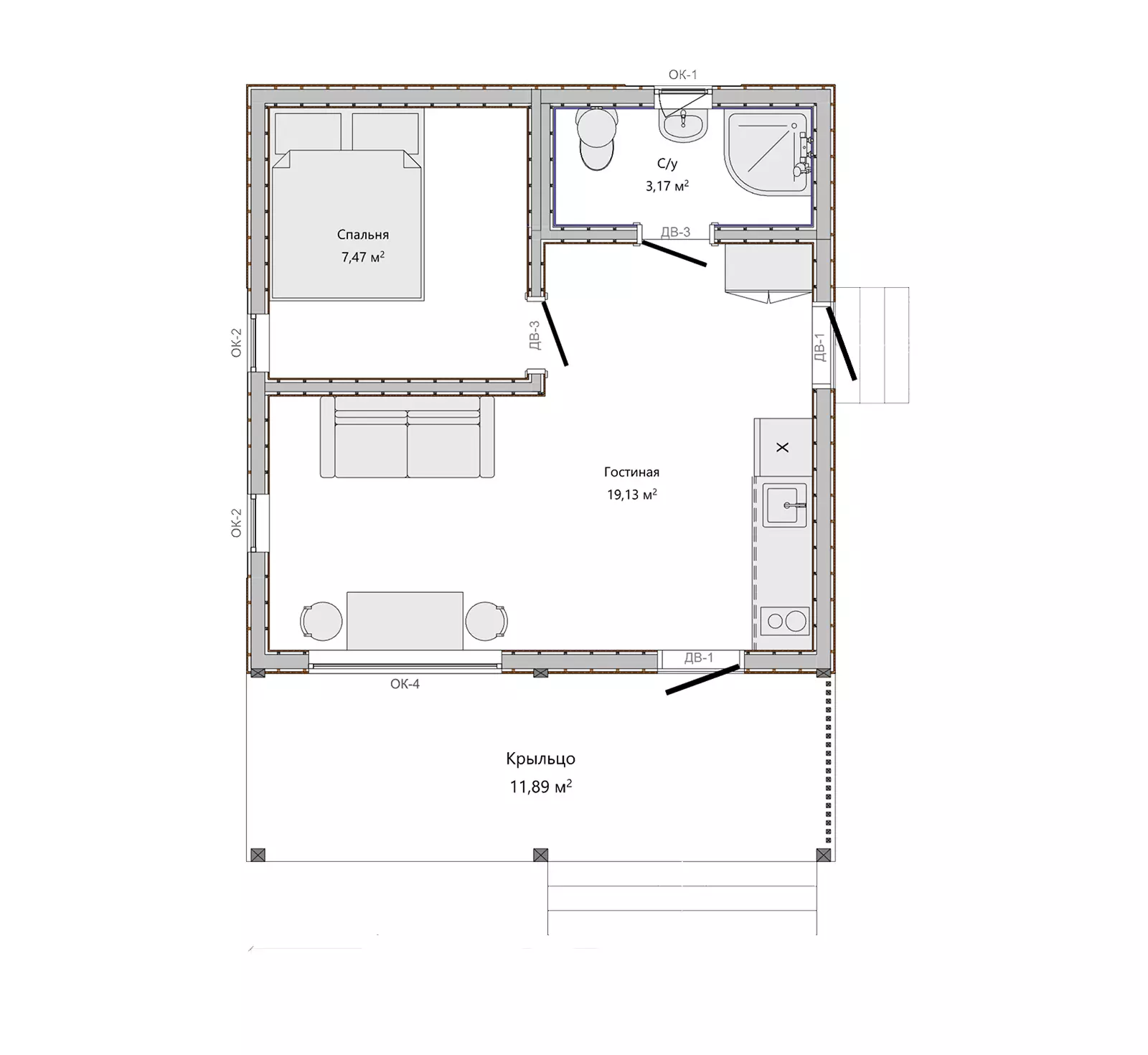
Планировка

● Гостиная (19.13 м²): Основное пространство дома для отдыха, приёма гостей и размещения кухни. Здесь размещается кухонная зона, обеденный стол и диванная группа.

● Спальня (7.47 м²): Отдельная комната для полноценного спального места и системы хранения.

● Санузел (3.17 м²): Зона для душа, унитаза и раковины.

● Крыльцо (11.89 м²): Просторная открытая площадка у входа, где удобно поставить стол и стулья.

 

Технические детали

● Каркас из деревянной доски с защитной обработкой.

● Утепление минераловатными плитами с ветрозащитой.

● Кровля из листовых материалов с защитой от осадков.

● Подготовка под освещение и розетки в основных зонах.

Что входит в базовую стоимость дома

Минимум стоимости-максимум комфорта и функциональности

Стандартно фасады выполняются: из имитации бруса в комбинированном варианте (имитация бруса + профлист).

Стандартно фасады выполняются: из имитации бруса в комбинированном варианте (имитация бруса + профлист).

Стандартно фасады выполняются: из имитации бруса в комбинированном варианте (имитация бруса + профлист).

Стандартно фасады выполняются: из имитации бруса в комбинированном варианте (имитация бруса + профлист).

Стандартно фасады выполняются: из имитации бруса в комбинированном варианте (имитация бруса + профлист).

Стандартно фасады выполняются: из имитации бруса в комбинированном варианте (имитация бруса + профлист).

Стандартно фасады выполняются: из имитации бруса в комбинированном варианте (имитация бруса + профлист).

Стандартно фасады выполняются: из имитации бруса в комбинированном варианте (имитация бруса + профлист).

Стандартно фасады выполняются: из имитации бруса в комбинированном варианте (имитация бруса + профлист).

Официальный договор

Фиксируем сроки, этапы и стоимость. Всё чётко и прозрачно.

Гарантия на все виды работ

Даём реальные сроки гарантии и быстро реагируем, если что-то пойдёт не так.

Работаем по регламенту

Каждый этап — по плану. Никакой самодеятельности или «как получится».

ОТВЕЧАЕМ ЗА РЕЗУЛЬТАТ

Сами осуществляем доставку и монтаж