Дом 6 на 3,4

от 0 руб. Оставить

Модульный дом 6x3.4 м — компактный вариант для дачи и отдыха

Модульный дом 6 на 3.4 метра (площадь около 20 м²) идеален для небольшого участка в Новосибирске и области. Компактная планировка для 1-2 человек: кухня-гостиная со спальной зоной, отдельный санузел и просторное крыльцо.

 

Минималистичный скандинавский стиль, быстрая установка на фундамент. Конструкция ориентирована на сибирский климат: дом рассчитан на снеговую и ветровую нагрузку, помогает сохранять тепло в морозы и комфортно чувствовать себя круглый год.

 

Характеристики

● Размеры: 6 x 3.4 м.

● Конструкция: Каркасная с утеплением стен, пола, крыши.

● Отделка: Внешняя и внутренняя по вашему выбору.

● Окна: Панорамное остекление для естественного света.

● Коммуникации: Разводка электрики, воды, вентиляции.

 

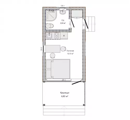
Планировка

● Кухня-гостиная со спальной зоной (13.13 м²):
Линейная кухня вдоль одной стены с мойкой, плитой, шкафами и холодильником + полноценная кровать напротив в нише. Эргономичная зона для готовки, еды и сна.

● Санузел (3.04 м²): Душ, унитаз, раковина.

● Крыльцо (6.83 м²): Крытая веранда для отдыха.

 

Технические детали

● Каркас из доски камерной сушки с антисептиком  

● Утепление базальтовой ватой + ветрозащита  

● Крыша: профлист или металлочерепица  

● Предустановка под кондиционер, точечное освещение  

● Энергоэффективность для сибирских зим

Что входит в базовую стоимость дома

Минимум стоимости-максимум комфорта и функциональности

Стандартно фасады выполняются: из имитации бруса в комбинированном варианте (имитация бруса + профлист).

Стандартно фасады выполняются: из имитации бруса в комбинированном варианте (имитация бруса + профлист).

Стандартно фасады выполняются: из имитации бруса в комбинированном варианте (имитация бруса + профлист).

Стандартно фасады выполняются: из имитации бруса в комбинированном варианте (имитация бруса + профлист).

Стандартно фасады выполняются: из имитации бруса в комбинированном варианте (имитация бруса + профлист).

Стандартно фасады выполняются: из имитации бруса в комбинированном варианте (имитация бруса + профлист).

Стандартно фасады выполняются: из имитации бруса в комбинированном варианте (имитация бруса + профлист).

Стандартно фасады выполняются: из имитации бруса в комбинированном варианте (имитация бруса + профлист).

Стандартно фасады выполняются: из имитации бруса в комбинированном варианте (имитация бруса + профлист).

Официальный договор

Фиксируем сроки, этапы и стоимость. Всё чётко и прозрачно.

Гарантия на все виды работ

Даём реальные сроки гарантии и быстро реагируем, если что-то пойдёт не так.

Работаем по регламенту

Каждый этап — по плану. Никакой самодеятельности или «как получится».

ОТВЕЧАЕМ ЗА РЕЗУЛЬТАТ

Сами осуществляем доставку и монтаж