Баня 6 на 6

от 0 руб. Оставить

Модульная баня 6 на 6 метров — тёплая баня для отдыха и парения

 

Модульная баня 6 на 6 метров — это тёплая баня с парной, помывочной и зоной отдыха, рассчитанная на использование круглый год в Новосибирске и области. Такое решение подойдёт, если хочется быстро получить готовую баню на участке, комфортно париться зимой и не связываться с долгим строительством.

 

Характеристики

● Размеры: 6 × 6 м, компактный формат, который удобно разместить даже на небольшом участке, сохранив место под парковку или зону барбекю.​

● Конструкция: Каркасная, с усиленным деревянным каркасом из строганой доски камерной сушки с огнебиозащитой, как в современных проектах модульных домов и бань.

● Утепление: Минеральная вата с паро- и ветрозащитой, толщина подобрана под эксплуатацию в сибирском климате и комфортное использование зимой.

● Отделка: Современное сочетание профнастила и дерева по стилю вашей бани — от строгого скандинавского фасада до более тёплых решений под дачный участок.

● Окна: Световые проёмы в комнате отдыха и на фасаде обеспечивают естественное освещение и создают ощущение пространства даже в компактной планировке.​

● Коммуникации: Закладка под электрику, освещение, розетки и сантехнику, выводы под печь и вентиляцию для безопасной эксплуатации парной.

 

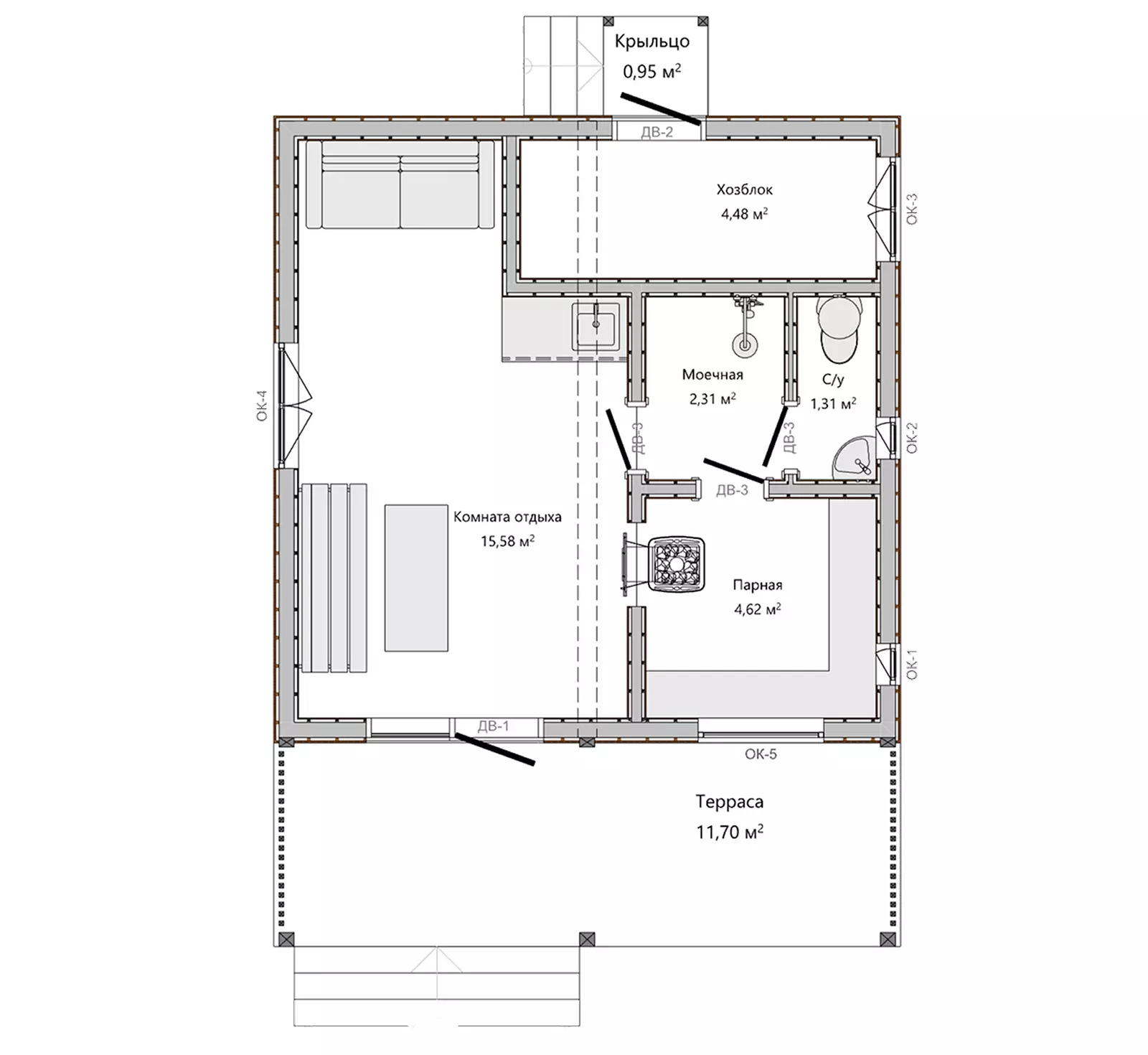
Планировка

● Терраса (11,7 м²): Удобная открытая или частично прикрытая зона у входа, где можно разместить стол, стулья и шезлонги для отдыха между заходами в парную.

● Комната отдыха (15,58 м²): Пространство для дивана, стола и небольшого кухонного модуля, чтобы комфортно перекусить и расслабиться после банных процедур.

● Парное отделение (4,62 м²): Отдельная парная с удобными полками и местом под печь, рассчитанная на комфортное парение нескольких человек одновременно.

● Моечная и санузел (3,62 м²): Зона с душем и необходимой сантехникой, продуманная для удобного использования после парения.

● Хозблок (4,48 м²): Отдельное помещение для хранения дров, инвентаря и оборудования, которое помогает поддерживать порядок и не загромождать основные помещения.

 

Технические детали

● Каркас: Усиленный деревянный каркас из доски камерной сушки с обработкой антисептиком и огнебиозащитой, рассчитанный на длительную и безопасную эксплуатацию.

● Утепление: Слоёная конструкция стен, пола и крыши с минеральной ватой, пароизоляцией и ветрозащитой, которая помогает бане уверенно держать тепло в морозы и экономить на отоплении.

● Кровля: Металлический профилированный лист или металлочерепица с гидроизоляцией, защищающая баню от осадков и образования наледи.

● Отделка внутри: Стены и потолок комнаты отдыха — имитация бруса или вагонка, в парной — породы древесины, комфортные при высоких температурах, с возможностью выбора оттенков под ваш стиль.

● Электрика: Электрощит с автоматами, скрытая проводка в стенах, выводы под освещение, розетки в комнате отдыха и месте установки техники, влагозащищённые светильники в помывочном и парном отделении.

● Монтаж: Баня поставляется готовыми модулями, установка на участке занимает значительно меньше времени по сравнению с классическим строительством, что снижает риски «долгостроя» и сезонных задержек.

 

Почему это решение удобно для Новосибирска

Проект изначально ориентирован на эксплуатацию в условиях Сибири: учтены морозы, снеговые нагрузки и перепады температур.

Каркас, утепление и инженерные решения позволяют использовать баню 6×6 м как круглогодичное место отдыха, а не только сезонную дачную постройку.

Модульный формат даёт возможность доставить готовый объект на участок и быстро перейти к эксплуатации, без долгого строительства и «мокрых» процессов.

Что входит в базовую стоимость дома

Минимум стоимости-максимум комфорта и функциональности

Стандартно фасады выполняются: из имитации бруса в комбинированном варианте (имитация бруса + профлист).

Стандартно фасады выполняются: из имитации бруса в комбинированном варианте (имитация бруса + профлист).

Стандартно фасады выполняются: из имитации бруса в комбинированном варианте (имитация бруса + профлист).

Стандартно фасады выполняются: из имитации бруса в комбинированном варианте (имитация бруса + профлист).

Стандартно фасады выполняются: из имитации бруса в комбинированном варианте (имитация бруса + профлист).

Стандартно фасады выполняются: из имитации бруса в комбинированном варианте (имитация бруса + профлист).

Стандартно фасады выполняются: из имитации бруса в комбинированном варианте (имитация бруса + профлист).

Стандартно фасады выполняются: из имитации бруса в комбинированном варианте (имитация бруса + профлист).

Стандартно фасады выполняются: из имитации бруса в комбинированном варианте (имитация бруса + профлист).

Официальный договор

Фиксируем сроки, этапы и стоимость. Всё чётко и прозрачно.

Гарантия на все виды работ

Даём реальные сроки гарантии и быстро реагируем, если что-то пойдёт не так.

Работаем по регламенту

Каждый этап — по плану. Никакой самодеятельности или «как получится».

ОТВЕЧАЕМ ЗА РЕЗУЛЬТАТ

Сами осуществляем доставку и монтаж